粉体行业在线展览
防静电、全封闭带式输送机、斗式提升机
面议
德瑞华
防静电、全封闭带式输送机、斗式提升机
3551
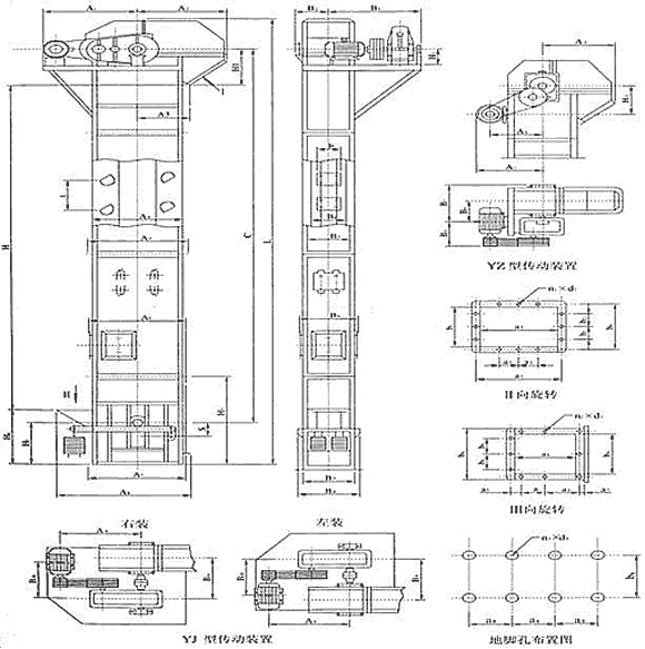
本机适用于输送物料,堆积比重不大于1.5t/m3的粉状、粒状、小块状的无磨琢性、半磨琢性的物料,如煤、水泥、砂石、粘土、矿石等,物料温度不超过250℃。

★ :表示物料容积为料斗盛水时容积,与实际充量相近,故输送量计算时 未考虑填充系数ψ,其体选型时应根据物料特性查表求得ψ修正值,以此值修正表给输送量。
斗式提升机轮廓高度和整机结构尺寸,料斗、地脚孔
斗式提升机上下部机壳及外形轮廓尺寸、中部机壳尺寸
斗式提升机卸料口尺寸
斗式提升机进料口尺寸
斗式提升机产品结构图
